Обустройство коммуникаций
Финальная стадия работы над мини-баней – обустройство необходимых коммуникационных систем.
Подача и слив воды. Подачу можно сделать самотечной:
- Подготовьте два бака по 50 л, шланг и трубу со смесителем.
- Бак для горячей воды установите на 0,5 м ниже, чем бак для холодной.
- Шлангом соедините между собой баки: один конец зафиксируйте в нижней зоне «холодного» резервуара, второй – в верхней зоне «горячего».
- Дополнительно соедините резервуары трубой со смесителем на конце.
Для обеспечения слива воды понадобится дренажная система:
- Выкопайте около парной дренажный колодец.
- Сделайте в полу бани отверстия для слива.
- Подведите к отверстиям трубы, монтируя их с небольшим уклоном.
- Направьте трубу в дренажный колодец.
Обустройство помывочной
Система нагрева воды. Для нагрева воды можно использовать мини-печку или ТЭНы. В первом случае нужно сначала установить прибор, а затем в его самом горячем месте, обогнув основание дымохода, монтировать U-образную металлическую трубу: подающий конец трубы следует расположить на корпусе, а выходящий – на 5 см выше. Во втором случае необходимо установить ТЭНы под «холодным» баком и соединить их с системой подачи воды шлангами и трубами.
Вентиляционная система. Для обеспечения вентиляции в маленькой бане достаточно в стене напротив входа выполнить отверстия с заслонкой.
Мини-баня – выбор тех, кто не хочет из-за скромных габаритов своего дачного участка отказываться от полноценной парной. Как видим, построить ее своими руками не составляет труда: фундамент, каркас, коммуникации – вы успешно справитесь с этими задачами, если будете следовать простым рекомендациям и правилам.
Маленькая баня на даче своими руками: проекты
Конечно, в интернете представлено множество проектов и чертежей. Рассмотрим наиболее популярные планировки маленьких бань для дачи.
Маленькая баня 3×4
Компактный и бюджетный вариант, который отлично подходит для небольшого приусадебного участка. Несмотря на свои размеры в такой бане можно разместить все необходимые для отдыха помещения. Возведение такой постройки займет мало времени – всего 3-4 дня.
Баня маленькая 3×6
Представляет собой три помещения, которые примерно одинаковы по размеру и идут друг за другом: комната отдыха, мойка, парная. Она также удобна и имеет достаточную вместимость. Строительство бани занимает в среднем около 10 дней.
Маленькая банька 4×4
Более просторный вариант, в котором представлено три основных помещения. Обычно самым просторным помещением делают комнату отдыха, которая также выполняет функции предбанника и раздевалки.
Такой проект маленькой бани для дачи является самым практичным. Его реализация займет всего около недели.
Небольшая баня 4×5
Такой вариант бани похож на 4×4, но может также иметь дополнительно небольшую террасу. Она удобна тем, что в теплое время года на ней можно отдохнуть, наслаждаясь чистым воздухом и яркими пейзажами.
Несмотря на свою компактность, проекты для маленьких бань могут различаться друг от друга размерами и расположением помещений, наличием веранды и т. д.
При составлении проекта не забудьте обозначить не только размеры самих помещений, но также отметить расположение дверей и окон, расстановку мебели. Перед строительством также следует определиться с материалами и рассчитать их количество.
Для строительства бань можно использовать разные материалы: дерево, кирпич, пеноблок. Каждый из материалов имеет свои достоинства и недостатки.
Несмотря на свою компактность, небольшая баня – это функциональное сооружение, в котором вы сможете хорошо попариться с веником для бани. Она гармонично впишется в небольшой участок и не займет лишнего пространства. Кроме того, маленькую баню своими руками сделать несложно и недорого.
Баня 2х2 и 2х3: особенности и нюансы постройки
Баня таких размеров, конечно, не подходит для большой компании. Ее обычно строят в случае, если ее будут посещать один-два человека. Если вы собираетесь ходить в баню зимой, то лучше выбрать другой вариант, где будет возможность сделать хотя бы три отдельных помещения, но предпочтительнее, если их будет четыре. К примеру, баня 4х4 хорошо подойдет для круглогодичного использования.
Нередко проект бани 2 на 2 выбирают для того, чтобы сделать из него пристройку к дому.
Несмотря на то, что баня небольшая и легкая, это не значит, что можно экономить на строительных материалах. Нужно сделать крепкий и прочный фундамент. Если вы будете строить деревянную баню, то нужно использовать качественную древесину, а не второсортную.
Сегодня также растет популярность постройки переносных бань. Они имеют небольшие размеры, при этом достаточно функциональны. Если вы захотите поставить у себя на земельном участке мобильную баню, то необязательно строить ее своими руками, можно купить готовую.
Баня 2 на 2 и другие подобные проекты – это отличный вариант для тех, кто хочет сэкономить пространство или деньги. Они быстро прогреваются и легко возводятся. При правильном подходе и грамотном составлении плана даже небольшая постройка, площадью 4 квадратных метра, может быть функциональной и удобной.
Как самому построить баню на даче.
Иногда так хочется покинуть суету и шум города, и уехать на дачу. Тишина, прогулки, занятие любимыми делами — что может быть лучше! Если на даче обеспечен комфорт, хочется приезжать ещё и ещё. Одним из комфортных условий проживания на даче является баня.
Строительство можно, конечно, поручить профессиональным строителям. Однако, построить и благоустроить баню на дачном участке вполне по силам самостоятельно. Это избавляет от дополнительных трат и позволяет произвести отделку и благоустройство в полном соответствии со своими желаниями и предпочтениями. Поэтому эта задача непростая, но вполне по силам начинающему строителю. Построенная собственноручно баня будет радовать владельцев ещё больше. Итак, как же самому построить баню?

Во-первых, как и при любом строительстве, сначала необходимо определиться с проектом и с материалами, из которых баня будет строиться. Выбор основного материала для строительства зависит от географического положения и условий эксплуатации, а также от собственных возможностей.
Бани бывают из кирпича, газобетона и других каменных материалов, некоторые отдают предпочтения каркасным баням, однако, многие начинающие строители предпочитают строить баню из дерева. Этот лёгкий и долговечный материал не требует обустройства серьёзного и дорогого фундамента, однако обладает прекрасными характеристиками. В случае надлежащего ухода, эксплуатация бани не будет доставлять особых хлопот.
И конечно, предпочтение стоит отдать брусу — баня из этого материала сохранит все преимущества деревянной конструкции и избавит от проблем и дополнительных затрат, которые могут возникнуть при строительстве стен из бревен. Возведение стен из бруса похоже на работу с конструктором — он может иметь разные геометрические размеры и сечение (прямоугольник, квадрат, полукруглый), а также, в случае профилированного бруса, присутствуют пазы для крепления. Строить из бруса легко и удобно — что может быть лучше для начинающего строителя!
Проекты бани
Даже в самом небольшом проекте предполагается наличие парилки. Для более комфортного времяпровождения, в бане располагают дополнительные комнаты. С этой целью все помещение делится на зоны, каждой из которых отводится определенная функция.
- В небольшой бане размером 5×6 для деления пространства можно не прибегать к несущим стенам. Можно ограничиться легкими деревянными перегородками. Для них не требуется фундамент, так как нет дополнительной нагрузки.
- Поскольку все внутреннее пространство разделено на несколько зон, возникает возможность быстро разогреть парную, не затрагивая другие помещения. Это актуально для комнаты отдыха, где не должно быть жарко.
Обязательным помещением в бане является предбанник. Предназначение этой комнаты — не допускать холодному воздуху проникнуть с улицы в парилку. Помещение можно использовать для хранения дров или другого топлива. Ее используют и как раздевалку.
В бане 3×5 м можно расположить достаточно большой предбанник. С помощью перегородок можно обустроить несколько дополнительных комнат для одежды и дров. Парилка предполагает наличие только одной двери, ведущей в предбанник. Последний же может иметь выходы в другие комнаты.
Проект бани для дачи (особенности)
Перед этапами непосредственного возведения бани стоит создать подробный проект. Это позволит выделить зоны строения и осознать размер свободной площади на участке земли, необходимый для размещения новостройки.
Стоит рассчитывать исходя из 5 кв. м. на одного взрослого человека. Не сложно подсчитать, что на 4 человек потребуется 20 кв. м.
Отделения бани:
- Парилка;
- Комната для омовения;
- Место отдыха;
- Предбанник.
Для понимания предстоящей работы создаётся общий чертёж бани. Отдельно рисуется схема каждого отделения. Далее указываем вид кровли, метод крепления материалов, устройство пола и потолка. Добавляем на план место для монтажа печи для этого учитываем конструкционные особенности оборудования. Если необходимо приспосабливаем к проекту выбранный вариант фундамента.
Если слишком сложно нарисовать от руки, тогда можно воспользоваться сетевой программой типа конструктора. Благодаря этому легко создать очень подробный и чёткий проект.
Сооружение каркаса бани
Лучший метод возведения мини-бани – каркасный. Он легкий, быстрый и экономичный. Для сооружения каркаса вам понадобится:
- бруски 5 х 5 см;
- доски толщиной 2,5 см;
- гидроизоляционная пленка или фольга;
- теплоизоляционный материал.
Возведение бани
Сначала из брусьев собирается каркас, соответствующий своими габаритами и конфигурацией ранее разработанному проекту. Изнутри каркас обшивается досками. Для соединения элементов между собой используйте всевозможные анкеры и разноформатные саморезы. Поверх досок монтируются изолирующие материалы: в качестве теплоизоляции можно использовать минвату, керамзит или опилки, а в качестве гидроизоляции – битумные или полимерные мастики. Изолировать нужно не только стены, но и пол, и потолок.
Совет. Тепло- и гидроизоляцию потолка желательно дополнительно закрыть щитами наката – рядом деревянных досок.
После изоляционных процедур нужно позаботиться о кровле. В качестве покрытия можно использовать профнастил, шифер или металлочерепицу: сначала монтируйте на каркас стропильную систему, а уже на ней саморезами закрепляйте кровлю. Сооружая крышу, оставьте проем для дымохода.
Снаружи мини-баню можно обшить блок-хаусом или вагонкой – эти материалы придадут конструкции эстетичный вид.
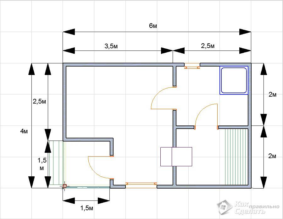
Разработка проекта
Даже если в планах строительство бани небольшого размера, то без разработки проекта не обойтись. Поэтому до начала работ необходимо составить план-схему. Она необходима для того, чтобы определить габариты будущего строения. А также её наличие позволит быстрее решить вопрос с расположением комнат. Обычно при устройстве таких сооружений выделяют следующие функциональные зоны:
- Предбанник. Для него будет вполне достаточно площади 1,5×2 м.
- Комната отдыха. Её оптимальный размер — 2×2 м.
- Душевая. Это помещение должно иметь размеры 1×1 м.
- Парилка. Габариты этой зоны — 1,5×2 м.
Создайте баню любой формы, вашей фантазии нет предела
Способы возведения стен
Сборка сруба
При строительстве стен, для начала уложите венцы, которые следует выровнять, а затем скрепить нагелями либо штырями из металла. Предварительно проделайте для них отверстия диаметром, идеально совпадающим с диаметром крепежных штырей. Расстояние между крепежными элементами должно составлять 1,5 м. Отверстие должно проходить сквозь брус, находящийся сверху и захватывать половину, лежащего ниже. В отверстия вбейте нагели длиной, которая равна высоте двух брусьев. Теперь проведите укладку утеплителя. Уложите верхний слой на место.
Таким способом должны быть уложены все венцы, за исключением последних двух верхних. Последние же скреплять не следует. В конце строительства их нужно будет временно снять, чтобы установить потолочные балки.
Скрепление бруса можно проводить и другим способом, например, используя притопленные гвозди – не имеющие шляпок. Обычными гвоздями этот процесс выполнять нельзя, потому как со временем они портят древесину ржавчиной.
Крепление нагелями
Деревянные шканты также могут служить элементами скрепления бруса, их сечение должно составлять 18×18 мм. Длина же во многом зависит от размера бруса, но не должна превышать 25 см. Предварительно просверлите отверстия в брусьях, равные диаметру в 21 мм, а после загоните в них шканты. Их необходимо устанавливать в шахматном порядке. Брус просверливайте насквозь.
Прижимной узел
Во избежание малейшей деформации и образования трещин в брусьях в качестве скрепления элементов конструкции стен используйте пружинный узел «Сила». Он по виду напоминает шуруп со встроенной внутрь сжимающей пружиной. Система крепления не допускает появления зазоров, за счет сильного прижатия брусьев одного к другому.
Устройство пружинного узла
В качестве межвенцового утеплителя может выступать джут, пакля или мох. Эти материалы хорошо справляются со своими теплоизоляционными задачами.
Джутовая теплоизоляция
При утеплении межвенцового пространства джутом нет необходимости по окончании срока усадки конопатить (забивать утеплителем щели в стенах бани) конструкцию. Однако если баня утеплялась мхом или паклей, то законопатить придется все образовавшиеся щели. Для этого используется конопатка, молоток и деревянная лопатка.
Кладем фундамент и организовываем слив
Для постройки своими руками проекты бань из газосиликатных блоков предполагают, что устанавливать строения этого типа можно на любом фундаменте. Он подбирается с учётом особенностей участка – особенностей ландшафта, плотности грунта, его сыпучести. При выборе самого распространённого – ленточного, фундамента туда, где будет поставлена баня из сибита, отзывы говорят, что точку промерзания грунта можно не учитывать. Баня из инси блока и баня, построенная из сибита своими руками, будут стоять и на мелкозаглублённм фундаменте. Его надёжность и выносливость так же высоки, как у полноценного ленточного.
Ход работы:
- Расчистка участка заключается в уборке валунов.
- После разметки участка, произведённой заострёнными колышками и натянутой бечёвкой, производится срезка дёрна.
- Выкапывается траншея глубиной 80 см, шириной 30 см.
- Насыпается 20 см песчаная подушка.
- В траншею устанавливается опалубка, высотой равной высоте траншеи. Она будет возвышаться над котлованом на высоту песчаной подушки.
- Из арматуры и алюминиевой проволоки производится армирование под фундамент для бани из газобетона.
- Врезка труб с закладкой элементов большего диаметра. Сверление отверстий под трубы.
- Внутрь опалубки заливается бетонный раствор, уплотняется строительным вибратором.
- В качестве гидроизоляционного материала используется рубероид или другой битумный материал.
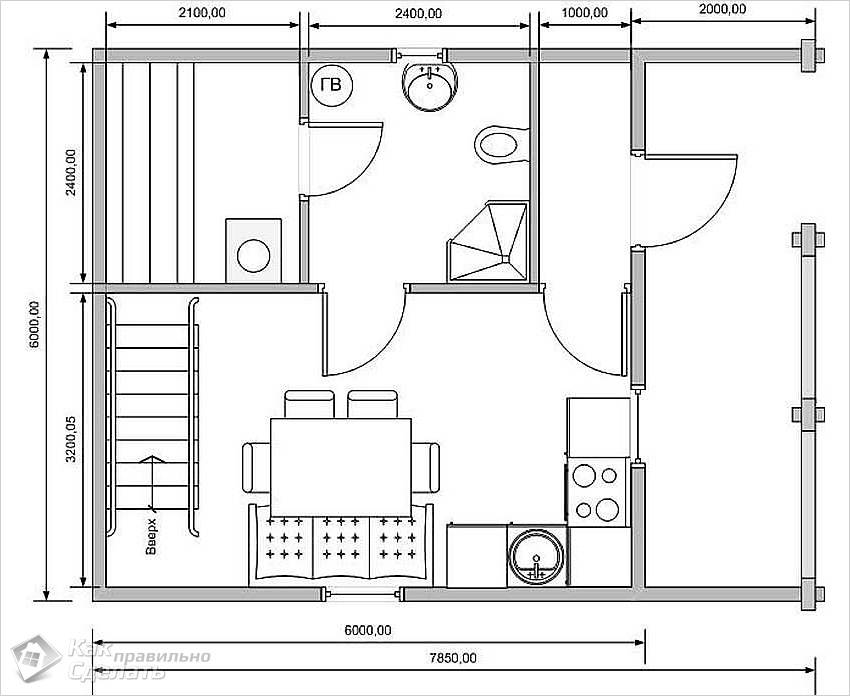
Проект и планировка бани с террасой 50 кв. м
Это проект небольшой, но вместе с тем уютной бани. Такая постройка может считаться частью усадьбы или использоваться в качестве отдельного элемента как самостоятельный дом, необходимый для релаксации.
Вход предваряет терраса, размером в 9,8 кв. м. Затем идет тамбур 2,3 кв. м.
Далее идет проход в комнату отдыха (15,9 кв. м).
Планировка бани 50 кв.м.
С комнаты отдыха проход ведет в помывочную (7,8 кв. м.), а потом в парную (7,8 кв. м.). Все комнаты расположены таким образом, что лишь минимальное количество тепла покидает последнее помещение.
Большое внимание уделяется системе отопления и освещения. Окна располагаются в бильярдной, комнате отдыха и самое маленькое в раздевалке
Следовательно, даже в дневное время будет ощущаться нехватка в освещении. Такая проблема будет решена с использованием подсветки в нижней части потолка.
Особенности планировки
Для того чтобы получить комфортные условия для отдыха в бане потребуется учитывать определенные особенности.
- Ни в коме случае в бане не должно быть сквозняков. В данном проекте такая проблема решается с возведением тамбура. Для большей эффективности стоит располагать двери перпендикулярно по отношению друг к другу.
- Дверь в баню обязательно должна быть низкой и узкой. Это поможет сохранению тепла в парной, даже во время сильных морозов зимой.
- Размер допустимых окон в бане может быть 40х60 или 70х80.
- В промывочной стоит позаботиться об окне над уровнем головы стоящего человека.
- Если помимо печи в бане не планируется использовать отопление, то она должна быть установлена таким образом, чтобы она могла обогревать сразу несколько помещений.
- Располагать баню лучше всего на небольшом возвышении, чтобы грязная вода самотеком уходила из строения.
- Все материалы, которые будут предназначаться для строительства, предварительно нужно просушить на солнце для того, чтобы степень влажности не была ниже 8%.
- Необходима четкость и качество вентиляционной системы.
Бильярд в бане
Основные характеристики деревянной бани:
- Конструкция: баня производится из оцилиндрованного бревна;
- Материал для фундамента: монолитный железобетон;
- Материал для наружных стен: оцилиндрованное бревно;
- Материал для перекрытий: деревянные балки;
- Материал для крыши: дерево;
- Материал для кровли: металлическая черепица.
Требования пожаробезопасности для бани
- Пространство, которое располагается ниже уровня пола, обязательно должно быть покрыто экраном из металла или кирпича. Это необходимо в случае, если туда попадет горячий уголек либо искра пламени.
- Под металлической печью, пол должен быть изолирован несколькими рядами кирпича. Укладывать его нужно на асбестовый картон или двойной войлок, который предварительно требуется пропитать глинистой смесью.
https://youtube.com/watch?v=qHvPO3nQqc8
Плюсы и минусы совмещения
Основными преимуществами совмещения парной и моечной являются:
- Возможность возвести баню на небольшом участке земли.
- Экономия денежных средств. Строительство маленькой бани обойдется дешевле, чем возведение просторной.
- Совмещенная баня быстро прогревается, что является несомненным преимуществом в холодное время года.










Недостатки совмещения:
- Сложность в поддержании необходимой температуры и влажности в помещении. Это связано с разностью показателей в парной и моечной.
- Запах мыла может омрачить удовольствия от распаривания, если кто-то уже принял душ, а кто-то еще парится.
- Затруднительно принимать водные процедуры в нагретой парной.

Порядок выполнения работы
Последовательное выполнение строительных процессов необходимо для получения надежной конструкции, которая прослужит не менее 20 лет. Ознакомьтесь с поэтапной постройкой бани на видео, где указаны основные моменты возведения сооружения.
Процесс строительства бани состоит из следующих важных шагов:
- составление проекта;
- получение разрешения на возведение объекта (для строительных работ на землях городских поселений);
- подсчет сметы строительных материалов;
- закупка всего необходимого;
- подготовка и разметка территории;
- обустройство дренажной ямы или отводящих сточные воды конструкций;
- организация основания, в том числе под отопительную печь;
- сборка коробки из бруса;
- возведение стропильной системы;
- монтаж кровли;
- усадка здания;
- постановка дверей, окон, установка печи;
- электрификационные работы;
- сооружение полков, статичных конструкций;
- отделочные мероприятия.
Последовательное выполнение всех мероприятий позволит за короткое время самостоятельно построить небольшую баню для комфортного отдыха и помывочных процедур
Уделите внимание каждому этапу, чтобы удовлетворить все запросы. В последующем вы можете пристроить к сооружению веранду, крыльцо, террасу
На чем основан выбор оптимального места для возведения бани
Возможно, для кого-то будет новостью, что баню можно поставить не на любом месте. Есть множество официальных и практических принципов, которых следует придерживаться. Более того, неправильный выбор места может привести к печальным последствиям. Рассмотрим все правила.
Расположение бани на дачном участке
В планировке расположения банного комплекса на садовом участке есть три основные требования:
| Расстояние от границы участка | Расстояние от банного комплекса до забора – минимум три метра. Строение не должно затенять территорию соседнего участка. Такой промежуток обезопасит постройки от возможного пожара, ведь баня – это пожароопасный объект. Еще один важный аспект – водоотведение. Трехметровая зона, даже если в вашей бане самая примитивная система водостока, не позволит грязной воде проникать на смежный участок. Для надежности можно проложить вдоль забора дренажную канаву, заполненную гравием. И еще пара существенных моментов: до жилого дома соседей расстояние должно быть не меньше восьми метров (шесть – если баня кирпичная). Решая, где построить объект, учтите, что дым от банной печи не должен доходить до окон соседского дома. |
| Расстояние до водоема | С одной стороны, расположение строения на берегу реки или озера очень выгодно. И воду легче набирать, и гарантировано удовольствие после парной с разбегу нырнуть в прохладные волны. С другой – следует неукоснительно следовать правилам, сохраняющим водоем от негативного воздействия сточных вод. Для этого строение должно располагаться не ближе, чем в 15 метрах от берега. Этот расстояние, к тому же, предохранит фундамент конструкции от подмывания в паводок. Береговую линию следует укрепить своими руками при помощи деревянных или бетонных каркасов. |
| Промежуток до жилого строения | Русская банька по «черному» размещается с подветренной стороны дома на расстоянии минимум двенадцать метров. Так дым не будет проникать в комнаты. Желательно, чтобы рядом с постройкой не было других легко возгораемых конструкций. Эксперты рекомендуют соблюдать четырехметровую дистанцию до курятника или коровника. |
На фото – баня на берегу естественного водоема
Бывают ситуации, когда с покупкой дачного участка баня достается, что называется, по наследству. В этом случае, конечно, переместить ее на новое место в соответствии с перечисленными правилами не всегда предоставляется возможным. Но, при помощи грамотной реконструкции можно добиться норм противопожарной безопасности.
Как пристроить баню к дому без ущерба основному строению
Не всегда размеры участка позволяют соблюсти все вышеперечисленные требования. Выход один – пристроить банный комплекс прямо к дому. Рассмотрим преимущества и недостатки такого решения:
Плюсы:
- экономия площади участка;
- зимой пользоваться домашней баней удобнее, так как нет необходимости выходить на улицу;
- можно значительно сэкономить на утеплении конструкции, так как одна стенка будет внутренней;
- можно использовать общую систему отопления и водоснабжения.
Сауна в каркасном исполнении
Минусы:
- могут возникнуть сложности с подсоединением строения бани к дому. Потребуются особые меры при возведении фундамента и соединении стенных плоскостей;
- объединение системы водоотведения может привести к чрезмерной нагрузке на местную канализацию;
- пожароопасность объекта представляет определенную угрозу для жилой постройки.
Построенная своими руками баня в доме – место не только для гигиенических процедур, но и для общения с близкими
Проектируя баню как пристройку к дому, необходимо рассмотреть все важные аспекты такого решения. Прежде всего, фундамент либо стыкуют с основанием дома, либо делают отдельно. Во втором случае для стыковки используют металлические скобы, а швы заполняют пеной.
Стены и крышу пристройки лучше делать из того же материала, что и основная конструкция. Разные по весу материалы дадут неравномерную усадку. Крышу пристройки делают односкатной, ее верхняя часть должна заходить под основную кровлю и примыкать к стене.
В следующем видео материале инструкция, как сделать баню-пристройку:
Watch this video on YouTube
Чертежи
Баня 6×2,3
Проект бани 4×4 из бруса
Баня 4×4
Из строганого бруса 4×4
Баня из бруса 5,5×4 м
Проект 6×3
План 4×6
Проект бани из бруса 4×6
Баня 6×4 с террасой
4×6
Баня 6×4
6×6
Из строганного бруса 6×6 с террасой
8,53×7,51
Баня размером 4×9 с террасой
Вариант двухэтажной бани из бруса
Мобильная баня 5.3×2.2 из проф. бруса со входом с торца
Еще пример 5.6×2.2 из проф. бруса
Варианты планировки сруба 5×3
План с мансардой
Гостевой дом-баня
Планировка 6×3 с жилой мансардой
Проект 7×6 с верандой
Проект планировки первого этажа двухэтажной бани из бруса
Чертеж бани из бруса
Еще один чертеж
Готовый проект
Помогла ли вам статья?
ДаНе особо
Расчёт количества материала и необходимые инструменты
Для строительства стационарного бетона нам понадобится большое количество материалов и различных инструментов.
- Цемент марки 100 и 400;
- Песок мелкой фракции 1,5–2 мм;
- Щебень;
- Арматура (длинные пруты диаметром 1,2–1,4 мм);
- Армирующая сетка;
- Деревянные доски для опалубки;
- Насосы для наполнения бассейна водой;
- Пластиковые трубы разного диаметра;
- Гидроизоляционная плёнка;
- Рубероид;
- Клеевой раствор с латексом;
- Каркас для бассейна;
- Геотекстиль;
- Металлические листы;
- Мозаика или фарфоровая плитка.
Инструменты
- Лопаты;
- Бетономешалка;
- Кельмы;
- Ёмкости для раствора;
- Уровень;
- Отвес;
- Болгарка;
- Перфоратор;
- Шлифовальная машинка;
- Трамбовки.
Для замеса 1 куб/метра бетона или 2400 кг необходимо:
- 325 кг — цемента;
- 170 л. – воды;
- 625 кг — песка;
- 1250 кг — щебня.




































