Технология
Изготовление блоков из арболита организовывают как в домашних условиях, так и налаживают масштабное производство, как прибыльный бизнес. Для этого учитывают все аспекты и стадии изготовления, руководствуются нормативными документами.
Технологию производства арболита по ГОСТУ необходимо начать с подготовки нужных ингредиентов, из которых 85 % составляет деревянные компоненты. Применяется древесная щепа, опилки, стружка. Наиболее подходящие породы древесины: сосна, пихта, ель, тополь, осина, береза. Допускается присутствие коры, листьев и хвои – не больше 5 % от общего объема. Заготовки пропускаются через станок для щепы и измельчаются. Рекомендуемый размер частичек 5х25 мм. Разнофракционный состав будет обеспечивать нужную плотность арболита.
Технология подготовки древесного сырья в домашних условиях производится различными методами – сооружение щепореза своими руками либо заключение договора с лесопилкой о поставке отходов деревообработки.
В промышленном производстве в сырье добавляют химические реагенты – хлористый кальций, сернокислый алюминий, жидкое стекло. При домашнем изготовлении рекомендуется выдерживать щепу три месяца на улице при этом опилки следует периодически перемешивать. Чтобы ускорить процесс в насыпь добавляют окись кальция – на один кубометр идет 200 литров 1.5 % раствора.
В роли вяжущего элемента подойдет портландцемент 400 – 600 марки. Смесь состоит на 10-15 % из цемента и не более 1% пластификаторов и деминерализаторов. Перед смешиванием составляющих частей, древесный компонент заливают 10 % раствором извести, потребуется выдержать 3 часа. На промышленных предприятиях такая методика вымачивания в технической емкости занимает до 3 дней.
Все компоненты смешиваются в бетономешалке. В итоге получится однородная масса без комков. Состав воды-щепы-цемента равен 4:3:3. Смесь должна быть немного рассыпчатой по консистенции и при сжатии держать форму.
Наиболее популярные производители и модели
Перед тем, как приступить к созданию собственного проекта, полезно ознакомиться с устройством и особенностями наиболее удачных промышленных образцов. Это помогает точнее понять принцип работы, внести в схему необходимые уточнения.
Рассмотрим некоторые из популярных моделей щепорезов:
Skorpion 350 SDB

Польская дробилка барабанного типа. Справляется не только с мелкими, но с крупными заготовками (поленья до 280 мм). Обладает повышенным запасом прочности режущего инструмента, гусеничная подача способствует обработке мелких фрагментов древесины.
Моби 250

Автономные измельчители, выполненные в виде полуприцепа. Оснащены собственными дизельными двигателями, подключаются к системе гидропривода. Предназначены для работы в полевых условиях.
Cramer COMBI CUT 9600

Немецкий агрегат, обладает хорошим качеством сборки и высокой надежностью всех узлов и деталей. Выполнен в виде автономного узла с собственным двигателем Honda. Способен переработать 830 кг сырья в час.
MTD ROVER 464 Q

Садовый измельчитель веток полупрофессионального уровня. Оснащен двумя раздельными диффузорами для загрузки веток и стеблей растений. Привод от бензинового мотора, для перемещения имеются 2 колеса.
Дровосек МР 300

Универсальный отечественный щепорез стационарного типа, способный работать с электроприводом 22, 380 В или на базе бензинового двигателя. Способен перерабатывать до 300 кг сырья в час. Предназначен для садовых работ с ветками и скошенными стеблями растений.
Viking GE 105

Дисковый щепорез, изготовленный в Австрии. Используется для измельчения веток, обзола и прочих видов исходного сырья. Оснащен электроприводом, максимальная толщина заготовок — 35 мм.
Калибр ЭСИ-2400Н

Китайский садовый измельчитель дискового типа. Оснащен электроприводом с питанием от сети 220 В. Компактный и легкий агрегат, вес которого составляет всего 11 кг.
Подготовка щепы для арболита
Вредные вещества, которые содержатся в древесном заполнителе, негативно влияют на прочность арболита. Поэтому важным этапом перед изготовлением арболитовой смеси является подготовка и обработка древесного заполнителя.
Существуют следующие способы подготовки заполнителя:
Физический способ
Подразумевает обработку древесины водой, которая вымывает значительную часть водорастворимых веществ. Именно поэтому в свежесрубленном дереве находится больше водорастворимых сахаров, чем в сплавном лесе. Древесина, которая хранится под навесом, будет содержать больше водорастворимых веществ, чем древесина, пролежавшая под дождем. Большого эффекта можно добиться длительным вымачиванием щепы в бассейне, но для этого необходимы площади. Достаточно вымачивать в течение суток в обычной воде или 2-3 часа в подогретой.
Химический способ
Самый простой способ: окисление дубильных веществ кислородом воздуха. Для этого древесину выдерживают на воздухе, и желательно под солнцем.
Химические реакции, возникающие при обработке щепы химическими веществами, переводят сахара в нерастворимые и безвредные соединения, а также создают непроницаемую пленку. Для обволакивания древесных отходов непроницаемой пленкой используют карбамидоформальдегидную смолу (КС-11 или КФ-МТ-П). Для уменьшения влияния вредных для цемента сахаров перед созданием цементной смеси щепу для арболита пропитывают минерализатором (4 – 10 % раствором хлорной извести). Процесс пропитки называется минерализация.
На практике популярна обработка древесного заполнителя растворами хлористого кальция, жидкого стекла и сернокислого глинозёма для устранения влияния вредных сахаров на цемент. Хлористый кальций следует использовать только для обработки выдержанной щепы деревьев хвойных пород. При использовании жидкого стекла и сернокислого глинозема порода древесина и время ее выдержки не важны, однако при их использовании уменьшается показатель прочности арболита почти в два раза.
Хлористый кальций или хлорид кальция CaCl2
Биологический способ
Устранение древесных ядов осуществляется при помощи катализаторов, в качестве которых могут выступать бактерии. К этому способу можно отнести элементарный прогрев древесины. Он активизирует биологические процессы, которые приведут к частичному брожению и окислению водорастворимых сахаров. В процессе сушки сахара становятся нерастворимыми: остекловываются и кристаллизуются.
Комбинированный способ
Этот способ сочетает вышеописанные химические и физические способы. Однако надо признать, что комбинированный способ трудоемкий.
Известен пример комбинированного способа применяемого в Англии. Древесный заполнитель 10 минут кипятиться, после промывается в воде. Так частично удаляются водорастворимые сахара. Затем ее кипятят в 20% растворе железного купороса, для осаждения дубильных веществ.
Еще один рецепт комбинированного способа: щепу вымачивают в жидком стекле от 5 часов до 24 часов, затем ее промывают и высушивают.
В разделе ГОСТ 19222 «Определение пригодности древесного заполнителя» описана методика по которой вы можете проверить эффективность того или иного способа.
Изготавливаем щепорез для арболита своими руками
Некоторые детали, чертежи которых представлены ниже, необходимо выточить на токарном станке, остальные можно изготовить своими руками в домашних условиях.

Основные размеры щепореза для арболита
Диск с ножами
Диаметр диска составляет около 300-350 миллиметров, а толщина – около 20 миллиметров. Чтобы предотвратить заклинивание больших и твердых кусков древесины, диск должен работать как маховик. Поэтому его надо сделать тяжелым. Для диска берем металлическую заготовку либо вырезаем его из листовой стали; затем пропиливаем в нем одно центральное отверстие для посадки на вал (учитывая шпоночное крепление), несколько монтажных отверстий и 3 паза, через которые отрезанные части древесины попадают под вращающиеся молотки.

Рубильный диск с ножами
Для изготовления ножей используем автомобильные рессоры. В каждом ноже делаем два отверстия с последующим их зенкованием (чтобы головки винтов были максимально утоплены) и крепим их к диску с помощью болтов с потайной головкой под шестигранник, которые обеспечивают плотное и надежное соединение, а также не позволяют болтам проворачиваться во время обжатия гаек с противоположной стороны.
Молотки

Вал и крепление для молоточков

Молоточки и приваренный отбойник Молотки – это плоские пластины (толщиной около 5 миллиметров), которые расположены на роторе. Они осуществляют дополнительное измельчение щепы. Молоточки лучше купить готовые. Расстояние между молотками в дробилке арболита 24 мм.

Расстояние между молотками в дробилке арболита
Сито для щепореза
Для изготовления сита, внутри которого будет располагаться растирочная камера, нужен металлический цилиндр Ø 300–350 мм изготавливаемый из металлического листа длиной L 942–1100 мм. В этом цилиндре пробиваются ячейки диаметром 8–12 мм. Просверливать их нежелательно – края ячеек должны быть острыми или рваными, поэтому отверстия рекомендуется проделать пробойником или керном нужного диаметра.
Защитный кожух, воронка, приемный бункер и рама
Для защитного кожуха, и воронки для приемного бункера подойдет листовое железо толщиной 8–12 мм. Листы нарезаются в размер и свариваются в конструкцию так, как указывают чертежи. Нарезаем все детали по заранее подготовленным «выкройкам» (их делаем из плотного картона) Ребра жесткости делаются из уголков, швеллеров или труб.

Защитный кожух
Оборудование дробильного узла: цапфы вала, на которые необходимо насадить опорные подшипники, плюс била (молотки) и режущий диск. Следующий шаг по изготовлению щепореза — нужно вырезать отверстия для рабочего вала, а также входные и выходные раструбы для подачи сырья и выхода щепы.

Рабочий вал
Приемный бункер приваривается к корпусу под углом. Механический и электрический приводы монтируются в последнюю очередь: на раму крепится электродвигатель, затем шкивы требуемого диаметра, и все узлы соединяются ременной передачей. Для этого можно использовать обычные автомобильные ремни подходящего диаметра.

Рама
Двигатель
От вида двигателя зависят производительность щепореза и объемы затрат на эксплуатацию. Экологичный электродвигатель не очень шумит, намного легче ДВС, но менее мощный, чем его «собрат». К тому же работа щепореза на электротяге зависит от скачков напряжения в электросети.
Агрегат на бензиновом, более мощном двигателе, работает дольше, больше и он не зависит от розетки электропитания. Но ДВС очень шумит, загрязняет воздух, требует ухода и его постоянно надо заправлять.
Если собранный щепорез для арболита соответствует требованиям точности и в соосности не будет разбега, то можно применить не ременное соединение, а соосную схему — можно подключить валы через муфту.
Достоинства и недостатки арболитовых блоков
Следует отметить, что в прошлом веке арболит использовался не только для изготовления стеновых блоков, но также выпускался в виде листов, которые применяли для утепления и звукоизоляции полов.

Сегодня в этом качестве древобетон практически не используется, потому что его основные достоинства раскрываются при возведении малоэтажных зданий. Перечислим их более подробно.
— Низкая теплопроводность
Стеновые блоки из арболита относятся к категории эффективных теплоизолирующих материалов. Об этом говорит следующий факт: стена из арболита толщиной всего в 30 см так же хорошо удерживает тепло, как кирпичная кладка метровой толщины.
Поэтому в отзывах владельцев домов из арболитовых блоков в первую очередь отмечается существенная экономия топлива даже в самые холодные зимы.
— Прочность
Прочность арболитовых блоков напрямую зависит от их плотности. Для конструкционно-теплоизоляционного древобетона плотностью 600-650 кг/м3 она составляет от 20 до 35 кг/см2. По данному показателю арболит практически не отличается от своих главных конкурентов – пено и газобетона.
Важным плюсом является пластичность этого материала. Данный факт объясняется тем, что в состав арболитовых блоков входит древесная щепа, армирующая этот материал. Поэтому под нагрузкой древобетон не трескается, а только немного деформируется без потери целостности.
Возводя дом из арболита, вам не придется тратить лишние деньги и время на заливку бетонного армированного пояса, который необходим для хрупких стен из газо и пенобетонных блоков.
— Морозостойкость
У арболита морозостойкость (количество циклов замерзания-оттаивания в водонасыщенном состоянии) составляет от 25 до 50. На практике это означает, что дом из этого материала простоит не менее 50 лет (подтверждено исследованиями существующих зданий). У пеноблоков сопротивляемость замораживанию и оттаиванию не превышает 35 циклов.
Говоря о плюсах арболита, следует также сказать о его низкой карбонизационной усадке. Этим термином обозначают процесс потери прочности цементным камнем из-за реакции с атмосферным углекислым газом, в результате которой получается мягкий мел.
— Хорошая звукоизоляция
У арболитовых блоков в акустическом диапазоне от 125 до 2000 Гц коэффициент звукопоглощения составляет от 0,17 – 0,6. У кирпича этот показатель хуже почти в четыре раза. У древесины он находится в границах от 0,06 до 0,1, что так же существенно меньше, чем у древобетона.
— Легкий вес
1 м3 блоков из конструкционно-теплоизоляционного арболита весит почти в 3 раза меньше кирпича и почти в 1,5 раза меньше керамзитобетона. Это позволяет существенно снизить затраты на возведение фундаментов под арболитовые стены.
— Экологичность и долговечность
Древобетон – один из самых экологичных строительных материалов, поскольку в его состав входят только натуральные компоненты – цементный камень, древесная щепа, вода, хлористый кальций (используется в пищевой промышленности) или обычное известковое молоко.
В стене этот материал ведет себя превосходно, поскольку не гниет, не боится плесневых грибков и не горит. Кроме этого, древобетон хорошо дышит и регулирует влажность воздуха в помещении, поглощая избыток влаги и отдавая ее при недостатке.
— Негорючесть
Арболит относится к группе трудногорючих материалов (группа горючести Г1). Кроме этого, древобетон является трудновоспламеняемым (группа воспламенямемости В1) и малодымообразующим материалом (Д1).
— Легкость обработки
Древобетон легко обрабатывается любым механическим инструментом. Его можно пилить и сверлить, он хорошо держит гвозди и шурупы. Шероховатая поверхность блоков является идеальной основой для нанесения штукатурных растворов без использования армирующих сеток.
К минусам арболитовых блоков можно отнести невысокую точность геометрических размеров. Поэтому стены из этого материала требуют выравнивания штукатурными растворами или листовыми отделочными материалами (гипсокартон, магнезит, вагонка, сайдинг).
Поскольку технология изготовления арболита основана на использовании древесной щепы – достаточно дорогого материала, то стоимость блоков из древобетона превышает цену газобетона в среднем на 15-20%.
Формовка арболитовых блоков
Как изготовить без брака? Можно выполнить работу двумя способами. Если купить специальную формовочную машину, то проблем никаких возникнуть не должно. Более бюджетным вариантом является поштучное изготовление блоков. Для этого собираются деревянные ящики со съемным дном. Внутри форма обивается линолеумом или толстым полиэтиленом. Чтобы загруженная масса после сушки легче вынималась, отделка предварительно обмазывается мыльным раствором.
После загрузки арболитовой смеси в формы изделиям дают настояться в течение 10 дней при температуре не ниже 15 °C. Если погода стоит более холодная, то время должно увеличиваться. При этом отрицательная температура воздуха недопустима.
Кроме того, чтобы добиться максимальной прочности, рекомендуется накрывать опилкобетонные блоки полиэтиленовой пленкой. Так процесс гидратации пройдет более эффективно.
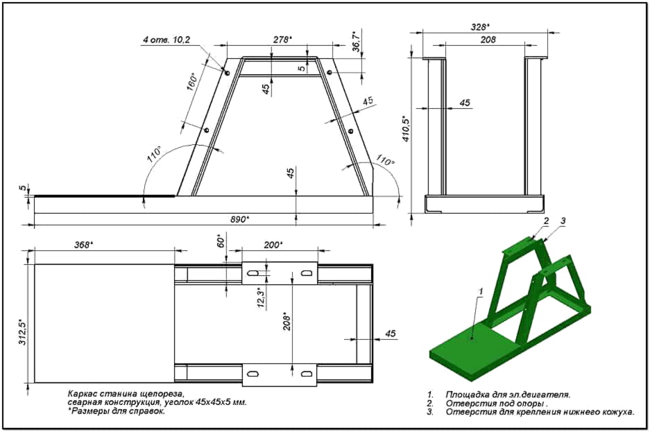
Конструкция щепореза для арболита
Если решились сделать щепорез для арболита своими руками, приступаем к изучению чертежей и разбираемся с материалами и инструментами. Независимо от конструкции агрегата, он состоит из следующих основных элементов:
- станины — ее делают из профильной трубы или уголка;
- корпуса — для его изготовления используется листовая сталь;
- рабочего элемента;
- электродвигателя — вместо него может быть бензиновый или дизельный мотор.
Рассмотрим подробнее эти и другие элементы далее.
Корпус дробилки с кожухом
Во время работы механизма корпус должен обеспечивать безопасность оператора, находящихся рядом людей. Для его создания применяют листовую сталь толщиной 1-2,5 мм. Сначала из труб или уголков делают каркас, а затем обшивают его железом.

Для упрощения ремонта, обслуживания агрегата, он должен иметь откидной или съемный кожух. Его делают из того же материала, что и корпус. Дополнительно укрепляют конструкцию при помощи ребер жесткости. Чтобы режущий узел не касался корпуса дробилки, диаметр маховика должен быть меньше размера корпуса на 3-5 см.
Электрический двигатель
При самостоятельном изготовлении такого станка чаще всего используют электрический двигатель. Если же работа будет выполняться вдали от доступа к электроэнергии, придется использовать бензиновый или дизельный мотор.
Электродвигатель работает практически бесшумно, легче ДВС, но его мощность ниже, чем у бензинового или дизельного мотора. Кроме этого, его работа зависит от перепадов напряжения. Чаще всего электромотор подключают при помощи ременного соединения.
Молотки и режущий элемент
Для более качественного измельчения щепы на роторе через каждые 20-25 мм закрепляют плоские пластины (молотки) толщиной 5-6 мм. Эти элементы должны быть одинаковыми, чтобы соблюдалась балансировка вала, поэтому лучше купить уже готовые молотки или изготавливать их с особой точностью.

Режущий диск делают диаметром 30-35 см, а толщиной не менее 2 см. Он будет работать в режиме маховика, что уменьшает вероятность заклинивания вала при попадании щепы между корпусом и диском.
Прочные, надежные ножи получаются с автомобильных рессор. Крепежные отверстия в них делают с потаем, чтобы утопилась головка болта, и надежно фиксируют на диске.
Калибрующее сито
Этот элемент выполнен в виде цилиндра с отверстиями диаметром 8-12 мм. Для их создания лучше использовать пробойник, а не сверло, т.к. края отверстий должны быть острыми и рваными.
Толщина листа, из которого делают калибрующее сито, не менее 5 мм. Для создания цилиндра диаметром 30-35 см понадобится лист длиной 94-110 см.
Подающее устройство
Этот элемент обеспечивает безопасную подачу материала для переработки. Чтобы обезопасить и упростить загрузку, подающее устройство делают под углом, тогда древесина движется к рабочему элементу под собственным весом, исключается ее выбрасывание назад. Бункер делают из листа стали толщиной 1-2,5 мм, на стыках усиливают его уголками или арматурой.

Изготавливаем щепорез для арболита своими руками
Некоторые детали, чертежи которых представлены ниже, необходимо выточить на токарном станке, остальные можно изготовить своими руками в домашних условиях.

Основные размеры щепореза для арболита
Диск с ножами
Диаметр диска составляет около 300-350 миллиметров, а толщина – около 20 миллиметров. Чтобы предотвратить заклинивание больших и твердых кусков древесины, диск должен работать как маховик. Поэтому его надо сделать тяжелым. Для диска берем металлическую заготовку либо вырезаем его из листовой стали; затем пропиливаем в нем одно центральное отверстие для посадки на вал (учитывая шпоночное крепление), несколько монтажных отверстий и 3 паза, через которые отрезанные части древесины попадают под вращающиеся молотки.

Рубильный диск с ножами
Для изготовления ножей используем автомобильные рессоры. В каждом ноже делаем два отверстия с последующим их зенкованием (чтобы головки винтов были максимально утоплены) и крепим их к диску с помощью болтов с потайной головкой под шестигранник, которые обеспечивают плотное и надежное соединение, а также не позволяют болтам проворачиваться во время обжатия гаек с противоположной стороны.
Молотки

Вал и крепление для молоточков
Молоточки и приваренный отбойник
Молотки – это плоские пластины (толщиной около 5 миллиметров), которые расположены на роторе. Они осуществляют дополнительное измельчение щепы. Молоточки лучше купить готовые. Расстояние между молотками в дробилке арболита 24 мм.

Расстояние между молотками в дробилке арболита
Сито для щепореза
Для изготовления сита, внутри которого будет располагаться растирочная камера, нужен металлический цилиндр Ø 300–350 мм изготавливаемый из металлического листа длиной L 942–1100 мм. В этом цилиндре пробиваются ячейки диаметром 8–12 мм. Просверливать их нежелательно – края ячеек должны быть острыми или рваными, поэтому отверстия рекомендуется проделать пробойником или керном нужного диаметра.
Защитный кожух, воронка, приемный бункер и рама
Для защитного кожуха, и воронки для приемного бункера подойдет листовое железо толщиной 8–12 мм. Листы нарезаются в размер и свариваются в конструкцию так, как указывают чертежи. Нарезаем все детали по заранее подготовленным «выкройкам» (их делаем из плотного картона) Ребра жесткости делаются из уголков, швеллеров или труб.


Защитный кожух
Важно! Сам режущий узел не должен цепляться за стенки корпуса, поэтому чтобы режущий узел свободно размещался в корпусе, диаметр маховика должен быть меньше размера корпуса на 30–50 мм. Оборудование дробильного узла: цапфы вала, на которые необходимо насадить опорные подшипники, плюс била (молотки) и режущий диск
Следующий шаг по изготовлению щепореза — нужно вырезать отверстия для рабочего вала, а также входные и выходные раструбы для подачи сырья и выхода щепы
Оборудование дробильного узла: цапфы вала, на которые необходимо насадить опорные подшипники, плюс била (молотки) и режущий диск. Следующий шаг по изготовлению щепореза — нужно вырезать отверстия для рабочего вала, а также входные и выходные раструбы для подачи сырья и выхода щепы.

Рабочий вал
Приемный бункер приваривается к корпусу под углом. Механический и электрический приводы монтируются в последнюю очередь: на раму крепится электродвигатель, затем шкивы требуемого диаметра, и все узлы соединяются ременной передачей. Для этого можно использовать обычные автомобильные ремни подходящего диаметра.

Рама
Двигатель
От вида двигателя зависят производительность щепореза и объемы затрат на эксплуатацию. Экологичный электродвигатель не очень шумит, намного легче ДВС, но менее мощный, чем его «собрат». К тому же работа щепореза на электротяге зависит от скачков напряжения в электросети.
Агрегат на бензиновом, более мощном двигателе, работает дольше, больше и он не зависит от розетки электропитания. Но ДВС очень шумит, загрязняет воздух, требует ухода и его постоянно надо заправлять.
Если собранный щепорез для арболита соответствует требованиям точности и в соосности не будет разбега, то можно применить не ременное соединение, а соосную схему — можно подключить валы через муфту.
Последний этап. Хлористый кальций или сульфат алюминия?

Теперь из почти готовой щепы осталось удалить сахарозу, которая приводит к вспучиванию блоков, образованию в них пустот и других дефектов. Делается это с помощью пищевой добавки Е 520 (сульфат алюминия) или хлористого кальция. Эти вещества оказывают мощный антисептический эффект и надежно защищают щепу от гниения.
Очень важная особенность — хлористый кальций более распространен и поэтому его проще найти и купить. Но эффективно работает он только с деревом, которое отлежалось после валки не менее 3 месяцев. Сульфат алюминия полностью удаляет водорастворимые сахара даже из свежей древесины.
Делаем своими руками
Стоимость рубительных машин наталкивает на мысль, что позволить себе их купить могут только частные предприниматели, которые делают теплые строительные блоки на продажу. Если оборудование нужно исключительно «для себя», дешевле выйдет самодельный щепорез для производства арболита. Когда схема работы понятна, собирать его нетрудно. Гораздо сложнее окажется отыскать подходящие материалы. Но кулибины из народа уже давно придумали, чем можно заменить те или иные специфические узлы.
1. Где взять детали?
Прежде чем браться за работу, необходимо построить или раздобыть чертежи станка для арболита со всеми нанесенными размерами. Если у вас нет возможности вытачивать детали машины в своем гараже, придется обращаться к специалистам, а они без сколько-нибудь грамотной технической документации вынуждены будут делать все «на глаз». В результате при таких оборотах и нагрузках ваш щепорез очень быстро разболтается, и производство арболита придется отложить. Часть узлов проще отыскать в пунктах приема чермета по смешной цене, чем заказывать их изготовление. Там можно будет найти вал и внешний шкив, а если для их сборки не окажется подходящей втулки, сделать ее в мастерской. Заодно попросите прорезать пазы на валу по вашим чертежам.
Точно так же решается проблема с диском для ножей. Он должен быть достаточно тяжелым и толстым (около 15 мм), чтобы, набрав обороты, уже мог работать как маховик, исключая заклинивание особо твердых кусков древесины. В крайнем случае подходящее изделие можно вырезать из стального листа, а затем сделать три-четыре широких паза под ножи, несколько монтажных и одно центральное посадочное отверстие с учетом шпоночного крепления. Диаметр диска – около 300-350 мм.
- Ножи для щепореза домашние умельцы советуют вырезать из автомобильных рессор. После этого в них необходимо просверлить по паре отверстий и прозенковать, чтобы потом утопить головки болтов.
- Молотки (била) лучше поискать готовые – здесь нужны абсолютно идентичные тяжелые и плоские пластины.
- Помучиться придется с ситом для щепы арболита. Понадобится металлический цилиндр подходящего диаметра, в котором необходимо пробить ячейки. Сделать это проще ступенчатым сверлом или сточенным на конус метчиком.
- Для защитного кожуха и подающего рукава пойдет листовое железо толщиной около 12 мм, которое нужно нарезать, а потом сварить из полученной «выкройки» корпус.
- Для формирования ребер жесткости могут понадобиться другие виды металлопроката: трубы, уголки или гладкая арматура.
При составлении чертежа станка для арболита и изготовлении кожуха важно выдерживать все размеры, чтобы режущий узел свободно помещался в корпусе и не цеплял стенки. Для этого диаметр изделия должен быть на 30-50 мм больше маховика

2. Этапы сборки щепореза для изготовления арболита.
В первую очередь собирается дробильный узел: на цапфы вала насаживаются опорные подшипники, режущий диск и молотки. После этого выполняется подготовка корпуса к монтажу строго по указанным в чертежах размерам. Вам нужно:
- Вырезать входы под рабочий вал, раструбы на подаче сырья и выпуске щепы для арболита.
- Просверлить нужное количество отверстий под болтовые соединения.
- Приварить под углом приемный патрон.
- Закрепить на кромке входного отверстия неподвижный контрнож, если это предусмотрено схемой, оставив зазор между изделием и режущим диском около 5 мм.
Все готово, чтобы собрать рабочий щепорез своими руками. Можно переходить к монтажу привода: устанавливать двигатель на раму, надевать шкивы выбранного диаметра и соединять автомобильными ремнями. Как вариант иногда применяют соосную схему и подключают валы через муфту. Но если нет возможности обеспечить совпадение осей, лучше не перегружать щепорез.
Когда изготовление и сборка щепореза подошли к концу, его крепят на раму, закрывают шкив кожухом (из соображений безопасности) и делают пробный запуск. Сначала вхолостую – пусть детали немного притрутся, а потом уже и с подачей обрезков. В первую неделю самодельный станок для щепы арболита лучше эксплуатировать в щадящем режиме, чтобы подшипники не перегревались, иначе их заклинит.
Выбор оборудования для изготовления
Наиболее подходящим оборудованием для получения щепы требуемой формы и размеров является специальный деревообрабатывающий шредер. Однако стоимость станка настолько высока, что вне производства приходится искать другие варианты.
Арболит вполне возможно изготавливать в домашних условиях. Для этого и щепу нужно делать самостоятельно. Измельчителем древесины в условиях подсобного хозяйства становится щеподробильный станок. Щепорезы бывают трех типов.
Дисковые рубильные машины обрабатывают древесину различной формы. За счет регулировки наклона режущего инструмента можно получать заготовки требуемого размера.

В барабанных щепорезах измельчают всевозможные отходы: лесозаготовительные, мебельного производства, обрезков после строительства. Сырье загружают в объемный бункер, откуда оно попадает в камеру и разрезается ножами с двусторонними лезвиями.

Роторные дробилки молоткового типа выпускаются с двумя или одним валом. Основные элементы устройства – молотки и отбойники. Сначала древесина измельчается ударным способом, затем готовая продукция просеивается сквозь сито. От величины ячеек сита зависит размер получаемой щепы.

Во всех перечисленных устройствах предусмотрена только ручная загрузка материала.



































